Unweit des Maybachufers im aufstrebenden Berliner Szenebezirk Neukölln bieten wir diese exklusive, lichtdurchflutete Neubauwohnung provisionsfrei an.
Highlights des Projekts im Überblick:
+ Moderne, zeitgemäße Architektur mit klaren Linien und urbanem Charakter
+ Nachhaltige Holzmassivbauweise mit Wärmedämmverbundsystem
+ Ökologisches Wohnkonzept mit Fokus auf Energieeffizienz und Umweltschutz
+ Wärme- und Umluftrückgewinnung zur wesentlichen Reduktion von Energieverlusten
+ Photovoltaikanlagen zur Nutzung regenerativer Energiequellen
+ Verwendung modernster Materialien für Komfort und Langlebigkeit
+ Degressive Afa
Lassen Sie sich vom durchdachten Baukonzept inspirieren, von unseren kompetenten Mitarbeitern beraten und werden Sie Eigentümer im MayRoofTop – der überzeugenden Wohnanlage im populären Herzen Kreuzköllns!
Nutzen Sie diese attraktive Investitionschance und gestalten Sie den beliebten Kiez aktiv mit!
Wohnqualität & Architektur
+ Durchdachtes, modernes Wohnkonzept unter Beachtung ökologischer Höchststandards
+ Große, bodentiefe Fenster für ein lichtdurchflutetes, angenehmes Wohngefühl
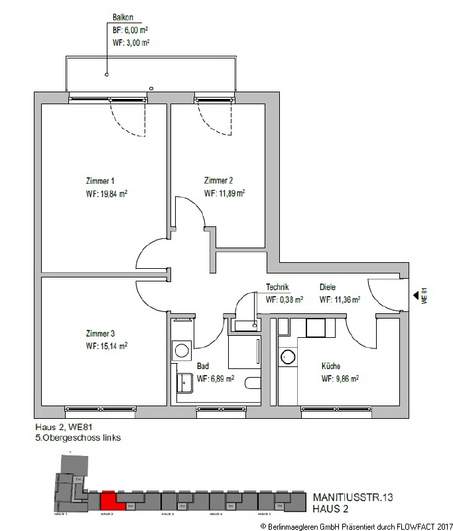
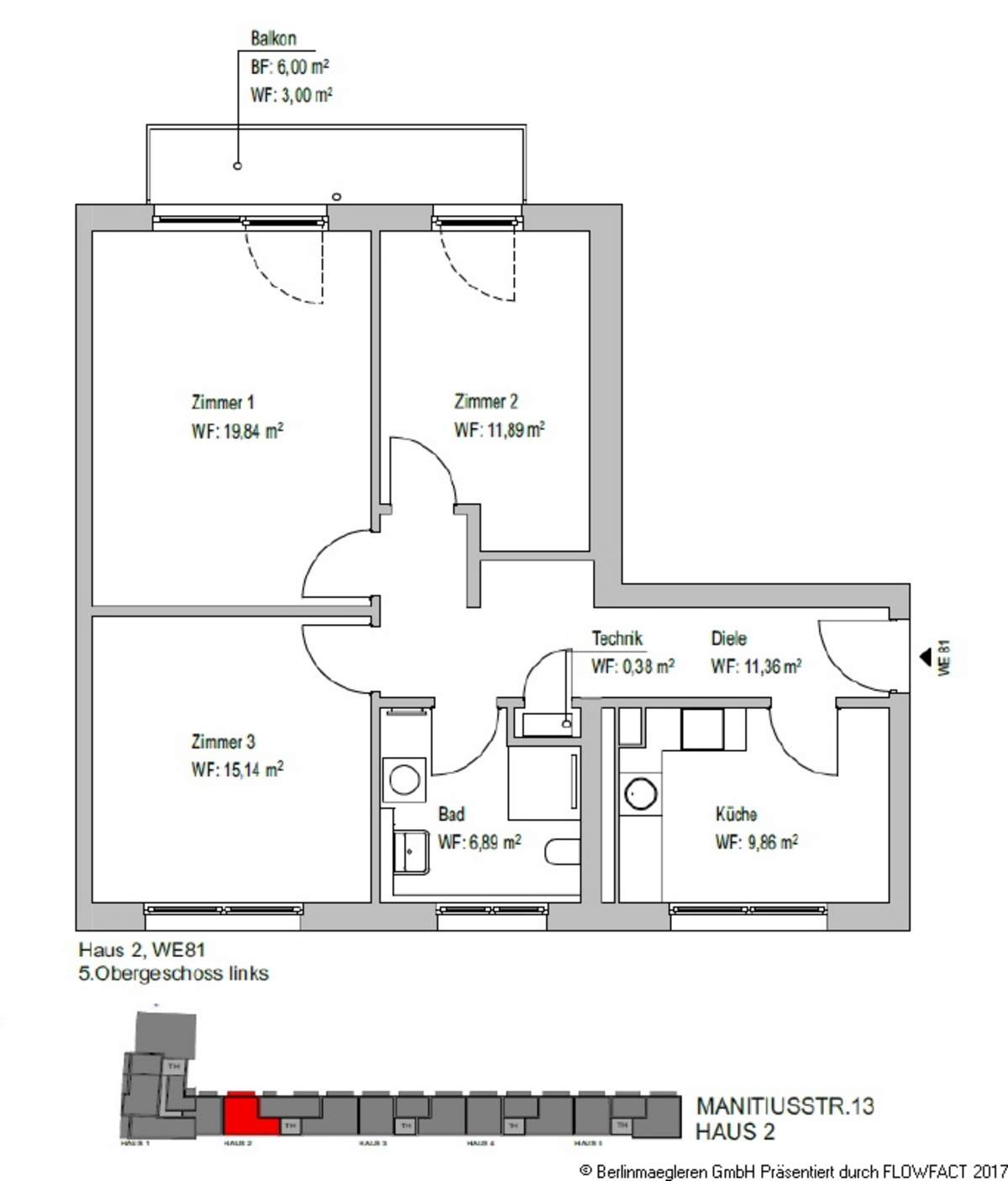
+ Balkon mit langlebigem WPC-Dielenbelag über zwei Zimmer nach Süden
+ Sondernutzungsrecht für abschließbare Fahrradräume (je nach Verfügbarkeit)
+ Absolut ruhige Lage mit Blick vom Balkon in den begrünten Innenhof
Innenausstattung
+ Hochwertiges Eichenparkett in allen Räumen (außer Bad)
+ Hochwertiges Bad mit ebenerdiger Dusche
+ Sanitärkeramik von Villeroy & Boch
+ Armaturen von Grohe
+ Fußbodenheizung mit Wärmerückgewinnung
Fenster & Beschattung
+ 3-fach verglaste Holzfenster mit erhöhter Schallschutzklasse
+ Elektrisch betriebener Textilscreen an den Außenfenstern (Fabrikat Warema)
+ Fenster- und Türbeschläge von Hoppe / Meesenburg
Technik & Komfort
+ Glasfaseranschluss
+ Videogegensprechanlage
+ Barrierefreie Aufzugsanlage (Firma Kone)
Verkehr & Abstellmöglichkeiten
+ Tiefgaragenstellplätze für PKW und Motorräder (optional verfügbar)
+ Fahrradabstellplätze im Untergeschoss sowie im Hof
Das Wohnensemble befindet sich im beliebten Kreuzkölln, dem aufregenden und spannenden Kiez in direkter Nähe zum Maybachufer.
Bunte Wochenmärkte, lebendige Cafés, Restaurants und Bars bieten hier die verschiedensten kulinarischen Erlebnisse. Wer gern selbst kocht, hat mit dem neuen Alnatura-Biomarkt eine gute Einkaufsmöglichkeit direkt im Haus.
Kreuzkölln und Umgebung sind bekannt für ihre lebendige Kulturszene. Wer seine Freizeit gern im Grünen verbringt, genießt die Promenade am Landwehrkanal, den Volkspark Hasenheide oder das Tempelhofer Feld.
Die Anbindung an den ÖPNV ist ausgezeichnet, verschiedene U-Bahn- und Buslinien verbinden die zentrumsnahe Wohnlage mit den grünen Außenbezirken Berlins.
Alle Wohnungen in diesem Ensemble werden provisionsfrei verkauft. Bitte kontaktieren Sie uns gern für weitere verfügbare Wohnungen: info@berlinmaegleren.de oder 030-61202398