wohnungskauf berlin
Beispielwohnung Wohnküche
Ansicht Penthouse
Beispielbad
Beispielbad_
Beispielwohnung Schlafzimmer
Häuseransicht Straßenseite
Umgebung mit beliebtem Wochenmarkt
Wochenmarkt am Paul-Lincke-Ufer
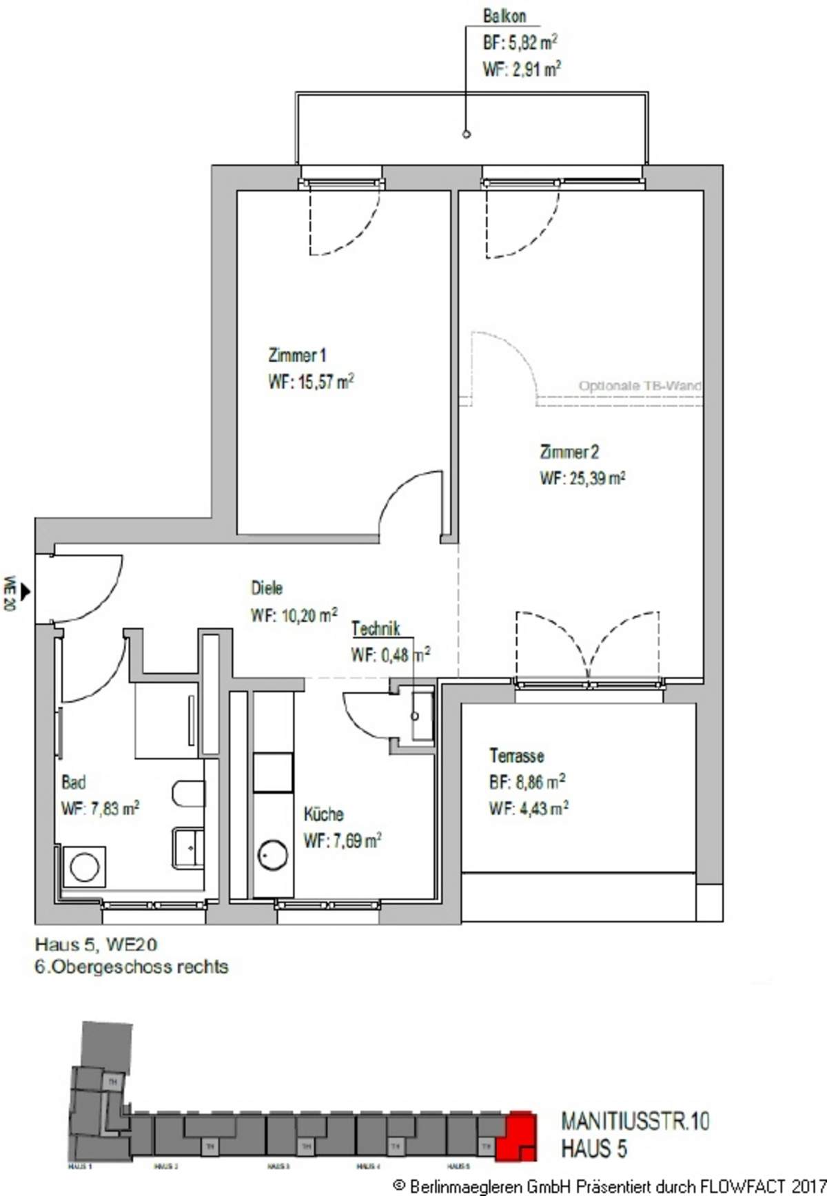
Grundriss
Görlitzer Park
Urbane Straßencafes
Spiel, Spaß, Sport auf dem Tempelhofer Feld
Landwehrkanal mit unzähligen Chillout-Zonen
Lage
Wohnbeispiel

Angebot weiterleiten

Objektdaten

7314

Kaufpreis
€ 745.000,00
Zimmer
2
Wohnfläche
74,50 m²
Etage
6
Baujahr
2025
Status
frei

Kosten

Hausgeld
€ 307,00
Provision/Courtage inkl. MwSt.
0%

Details

Personenaufzug
ja
Zustand
Erstbezug
Heizungsart
Zentralheizung
Frei ab
März 2026
Anzahl Schlafzimmer
1
Mehr anzeigen

 

Kaufpreis

€ 745.000,00