neubau neukölln kreuzkölln maybachufer
Beispielwohnung Wohnküche
Hausansicht Hofseite
Beispielbad
Beispielbad_
Beispielwohnung Schlafzimmer
Häuseransicht Straßenseite
Umgebung mit beliebtem Wochenmarkt
Wochenmarkt am Paul-Lincke-Ufer
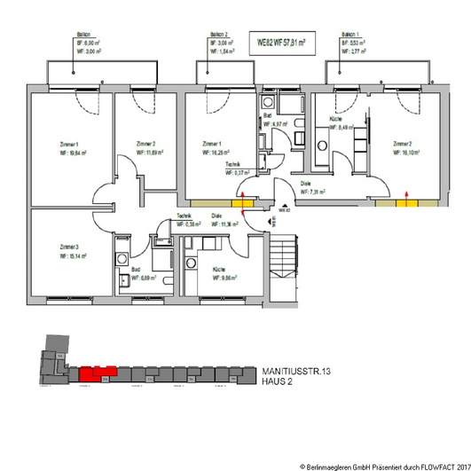
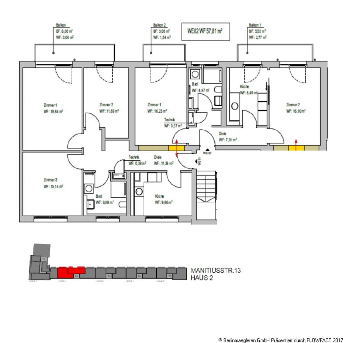
WE 81_82
Görlitzer Park
Urbane Straßencafes
Spiel, Spaß, Sport auf dem Tempelhofer Feld
Landwehrkanal mit unzähligen Chillout-Zonen
Lage
Urbane Straßencafes

Videresende

Overblik

7365

Købspris
€ 1.204.077,00
Antal værelser
6
Beboelsesareal
136,17 m²
Etage
5
Byggeår
2025

udgifter

Månedlige fællesudgifter
€ 565,00
Mæglersalær inkl. moms
0%

specifikation

Elevator
Ja
Tilstand
Nyopført
Opvarmningstype
Centralvarme
Antal værelser
5
vis flere

 

Købspris

€ 1.204.077,00