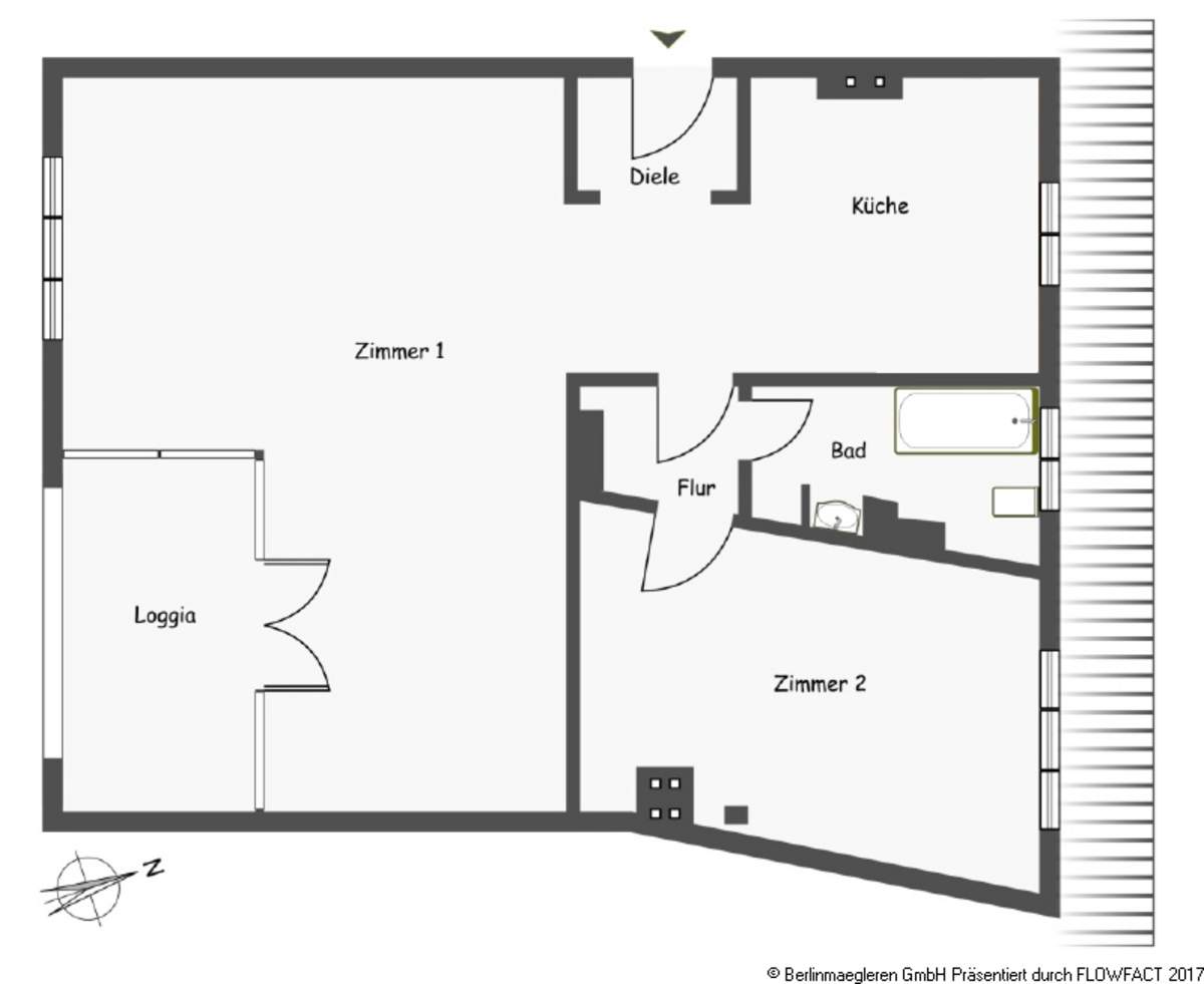
The attic apartment is located in the front building of a well-kept house from 1900. It has two rooms, the larger of which has access to the loggia and offers a great view of Paul-Lincke-Ufer and the Landwehrkanal. The apartment has been rented since 2020 and is being sold as an investment in its current condition. Details on the rental income are available on request.
* Loggia with south-west orientation towards Paul-Lincke-Ufer
* Wooden floor
* Tiled kitchen with window
* Bathroom with a window, bathtub and towel radiator
The prime location on "Paul-Lincke-Ufer" is extremely popular. The "Landwehrkanal" offers shady paths for walking, cycling and lingering. The gastronomic scene in Kreuzberg is as diverse as its inhabitants. Markets, cafés, restaurants and bars offer a wide variety of culinary experiences. The many different weekly markets are a great place to do your weekly shopping, for example. Another highlight in Kreuzberg is the so called "Markthalle Neun", which is within walking distance. The underground stations "Schönleinstraße" (U8), "Görlitzer Bahnhof" (U1, U3) and "Kottbusser Tor" (U1, U3, U8) are all within walking distance.