wohnungskauf berlin
Beispielwohnung Wohnküche
Ansicht Penthouse
Beispielbad
Beispielbad_
Beispielwohnung Schlafzimmer
Häuseransicht Straßenseite
Umgebung mit beliebtem Wochenmarkt
Wochenmarkt am Paul-Lincke-Ufer
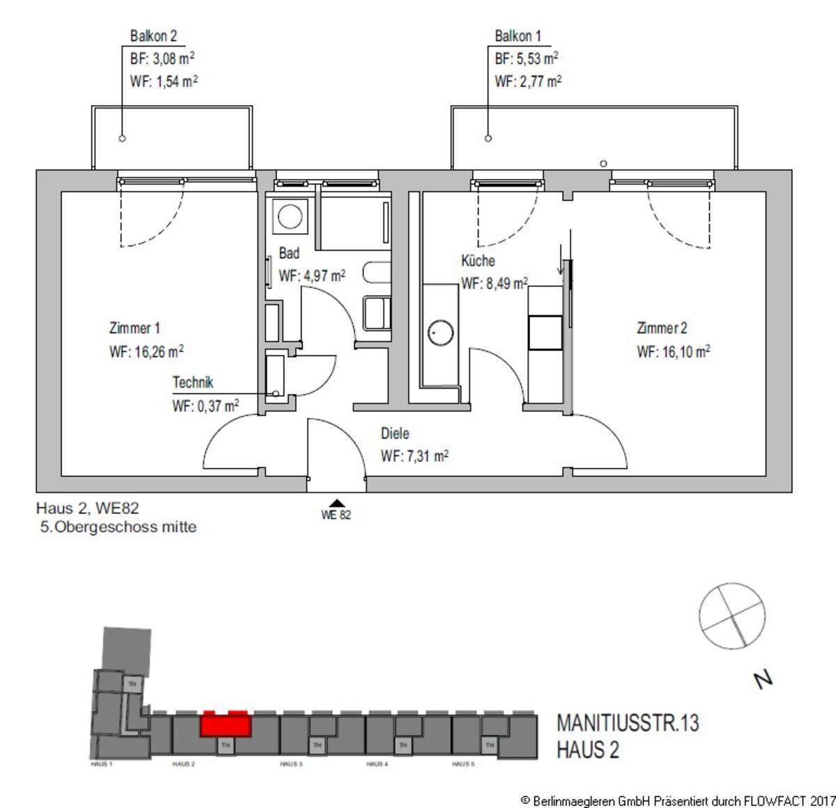
Grundriss
Görlitzer Park
Urbane Straßencafes
Spiel, Spaß, Sport auf dem Tempelhofer Feld
Landwehrkanal mit unzähligen Chillout-Zonen
Lage
Wohnbeispiel

Videresende

Overblik

7363

Købspris
€ 514.509,00
Antal værelser
2
Beboelsesareal
57,81 m²
Etage
5
Byggeår
2025

udgifter

Månedlige fællesudgifter
€ 246,00
Mæglersalær inkl. moms
0%

specifikation

Elevator
Ja
Tilstand
Nyopført
Opvarmningstype
Centralvarme
Antal værelser
1
vis flere

 

Købspris

€ 514.509,00